U bent hier
NIEUWBOUWWONING (Bj 2025) met 4 slaapkamers, carport en tuin net buiten centrum van Brugge
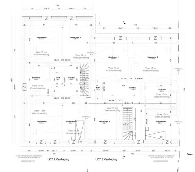
INDELING LOT 2:
Grondopp: 321 m2 (waarvan 82 m2 cijnsgrond achteraan perceel) - Centrale Verwarming op gas - Dubbele beglazing - E-peil: 30 - Tuin - CARPORT - Fietsenberging - Inkom - Toilet - Living met open ingerichte keuken (57 m2) - Wasplaats/berging - 4 Ruime slaapkamers (10,12,15 en 16 m2) - Badkamer met ligbad, aparte douche en lavabo (8 m2) - Toilet - Ruime zolder/hobbyruimte of extra slaapkamer(s) op de 2e verdieping van 54 m2 (mogelijk om in te richten tot slpk en vaste trap te installeren, meerkost 18.000 euro) - Vlotte verbinding naar Brugge centrum - De foto’s zijn die van de modelwoning en louter ter illustratie - De modelwoning te Torhout is te bezoeken na afspraak met ons kantoor - TOPAANBIEDING en ideaal voor een gezin met kinderen!
Financieel
Algemeen
Interieur
Exterieur
Omgeving
Stedenbouwkundige voorschriften
Locatie
Deze informatie is vrijblijvend en zonder enige contractuele verbintenis vanwege de eigenaar en of makelaar Ze wordt enkel ten informatieve titel overgemaakt. De voorstelling, beschrijving en afmetingen werden met de grootste zorg opgesteld. Mochten er toch fouten of vergissingen in voorkomen dan excuseren wij ons hier uitdrukkelijk voor. Wij kunnen hiervoor niet aansprakelijk gesteld worden. Neem daarom altijd persoonlijk contact met ons op, zodat wij volledige informatie kunnen verschaen. Een verkoop / verhuur / overname, komt slechts tot stand na ondertekening van een onderhandse overeenkomst.














